Posts

Acústica para escritórios: como adequar o som e melhorar a produtividade?
/
1 Comentário
O incômodo ao ruído não apenas interfere na conversação…

Captura de grave ou bass trap funciona mesmo?
Fonte: https://ethanwiner.com/basstrap_myths.htm
Em artigo…

Você sabe o valor do projeto acústico?
O ruído é caro: tem um custo elevado para a saúde, qualidade…

Infraestruturas verdes: qualidade acústica associada a sistemas de parede e telhado verdes
Em 16 de agosto de 2018, publicamos o artigo “Parede Acústica…

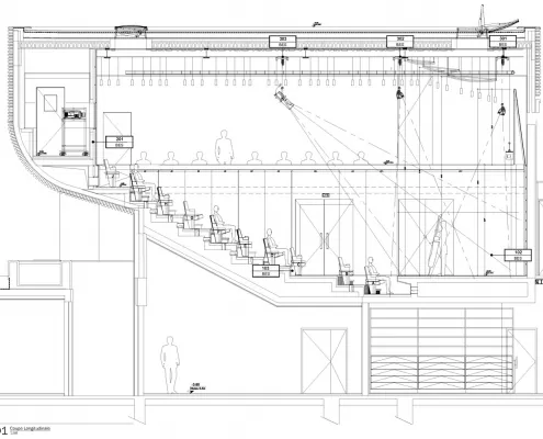
Conheça um projeto acústico para um auditório polivalente
Os consultores da Theatre Projects , juntamente com o escritório…

Conheça as 6 fases do projeto de isolamento acústico!
O dia a dia do arquiteto e do engenheiro é corrido! Fazer plantas…

6 fases do projeto de isolamento acústico que você precisa saber
O dia a dia do arquiteto e do engenheiro é corrido! Fazer plantas…


